fbpx


LOADING

582 Ville Marie Drive Marystown, Newfoundland & Labrador A0E 2M0

4 Bedroom 1 Bathroom 1090 sqft
Bungalow Landscaped

$129,900

Located on Ville Marie Drive just minutes from Marystown’s main amenities, this affordable one-level bungalow is a fantastic opportunity at $129,900. Featuring 4 bedrooms and 1 bathroom all on the main floor, this home offers convenient, easy living — perfect for first-time buyers or investors. Recent updates include fresh paint throughout, new flooring in the bedrooms and shingle replaced in 2022, giving a move in ready feel. Down below, you’ll find a 6-foot crawl space with outside access, offering space for storage, or a workshop setup. The 28 x 18 garage sits on a concrete slab and provides incredible flexibility — ideal for a workshop, home gym, extra storage, or hangout. Affordable, practical, and well-located — this one is ready for its next owner! Don't wait, schedule your private viewing today! (id:51189)

Property Details

MLS® Number 1294756
Property Type Single Family
AmenitiesNearBy Shopping
EquipmentType None
RentalEquipmentType None

Building

BathroomTotal 1
BedroomsAboveGround 4
BedroomsTotal 4
Appliances Refrigerator, Microwave, Stove, Washer, Dryer
ArchitecturalStyle Bungalow
ConstructedDate 1964
ExteriorFinish Vinyl Siding
Fixture Drapes/window Coverings
FlooringType Laminate, Other
FoundationType Concrete
HeatingFuel Oil
StoriesTotal 1
SizeInterior 1090 Sqft
Type House
UtilityWater Municipal Water

Parking

Garage 1
Detached Garage

Land

AccessType Year-round Access
Acreage No
LandAmenities Shopping
LandscapeFeatures Landscaped
Sewer Municipal Sewage System
SizeIrregular 0.176 Acre
SizeTotalText 0.176 Acre|under 1/2 Acre
ZoningDescription Residential

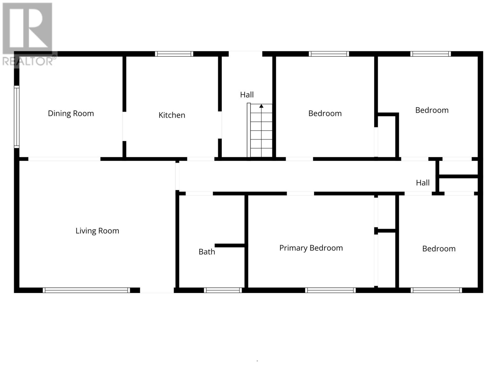
Rooms

Level Type Dimensions
Main Level Bedroom 9.10 x 9.10
Main Level Bedroom 7.9 x 9.1
Main Level Bedroom 9.8 x 9.10
Main Level Primary Bedroom 12.4 x 9.1
Main Level Bath (# Pieces 1-6) 6.5 x 9.1
Main Level Living Room 15.4 x 12.5
Main Level Dining Room 10.2 x 9.10
Main Level Kitchen 9.0 x 9.10
Main Level Foyer 5.0 x 9.10

https://www.realtor.ca/real-estate/29401242/582-ville-marie-drive-marystown

Interested?

Contact us for more information


Generating Captcha

Your Favourites

 

No Favourites Found

 

Compare listings

Compare

Enter your email address to view the listing details...