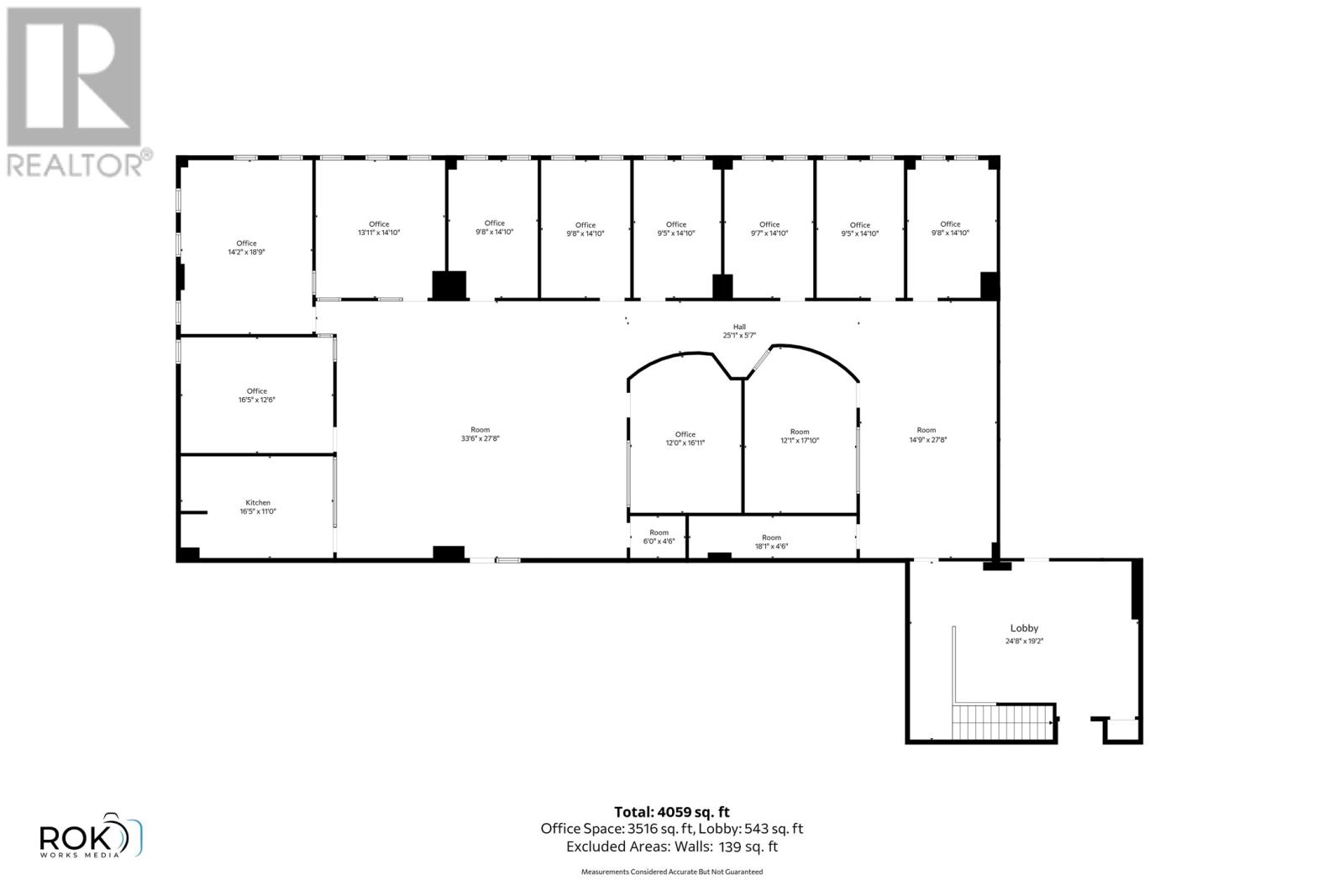
Elevate your business in the heart of downtown St. John’s. Situated on the 8th floor of Atlantic Place, 215 Water Street, this premium office space offers approximately 5,500 sq. ft. of bright, adaptable workspace with some of the most impressive views in the city. Designed to accommodate a variety of professional uses — from legal and accounting firms to tech companies and consulting groups — the layout can be customized to suit your team’s needs. Expansive windows fill the space with natural light while showcasing sweeping panoramic views of the Narrows and St. John’s Harbour, creating an inspiring environment for both staff and clients. Atlantic Place offers exceptional on-site amenities including a fitness centre, coffee shop, conference facilities, and 24/7 security. Surrounded by a vibrant mix of professional offices, restaurants, and boutique shops, this location places your business right in the centre of St. John’s thriving commercial community. Offered at $26.00 per sq. ft. net per annum. If you’re looking for a prominent downtown address with flexibility, views, and convenience, this space is well worth a closer look. Reach out to arrange your private tour and explore how it can be tailored to fit your business (id:51189)
| BusinessType | Service |
| MLS® Number | 1294758 |
| Property Type | Office |
| HeatingFuel | Electric |
| HeatingType | Baseboard Heaters, Forced Air |
| Type | Offices |
| Acreage | Yes |
| SizeTotalText | 1 - 3 Acres |
| ZoningDescription | Commercial |
https://www.realtor.ca/real-estate/29397443/215-water-street-unit813-st-johns
Contact us for more information